Lewes Estates

Springett Cottages, Ringmer

£600,000

Springett Cottages, Ringmer
Springett Cottages, Ringmer Springett Cottages, Ringmer Springett Cottages, Ringmer Springett Cottages, Ringmer

Property Description

4 Bedroom(s) | 2 Bathroom(s) | 1 Reception(s)

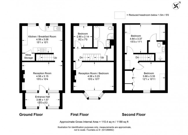
Entrance Hall (3.96 x 1.57)

Enclosed entrance porch with space for seating. UPVC double glazed windows with an easterly aspect. Gas meter. Glazed door to:

Reception Room (4.58 x 3.15)

Two windows with a front aspect. Hard wood floor. Open fireplace with tiled surround, wooden mantle, and slate hearth. Bespoke alcove cupboards and shelves. Electric meter and fuse box. Opening to:

Inner Hallway

Stairs ascending to the first floor, opening to:

Kitchen/Breakfast Room (4.59 x 3.08)

Westerly aspect room with range of fitted undercounter cupboards and drawers, a natural slate floor with underfloor heating, quartz worktops, butlers sink, free standing Range master cooker with extractor over, integrated slimline dishwasher and space for a fridge/freezer. There is glazed door to the bespoke understairs wine store and a door provides access to the rear courtyard garden.

First Floor Landing

Stairs ascending from the ground floor, doors to first floor accommodation and additional staircase to the second floor. Cupboard with space and plumbing for washing machine.

Reception Room/Bedroom (4.58 x 3.23)

Front aspect room with large bay window, hardwood floor, cast iron fireplace with wooden surround.

Bedroom (2.80 x 2.14)

Rear aspect single bedroom (currently used as a study) with views of the garden and the church beyond.

Bathroom

Rear aspect with privacy glazed window. Fitted suite comprising of a panelled bath and mixer taps, low level WC, wash hand basin vanity unit and corner shower. Heated towel rail. Fully tiled walls and floor.

Second Floor Bedroom (3.8 x 3.33)

Some restricted head height. Window with front aspect and views of village green. Bespoke fitted wardrobes.

Bedroom with Ensuite (4.64 x 3.37)

Rear aspect double bedroom with space for seating. Part glazed door to en-suite. Spacious shower room with hardwood floor, walk in shower, low level WC, wash hand basin over vanity and heated towel rail.

Gardens

Enclosed front garden with lawn, footpath and mature shrubs. Paved rear courtyard garden with brick patio. Wooden panel fence and brick wall. Gate to rear. To note: A right of way exists around the front and rear of the properties in the terrace.

Floorplan for Springett Cottages, Ringmer

These particulars have been prepared in good faith to give a fair overall view of the property; they do not constitute an offer and will not form part of any contract. We make no representation about the conditions of the property nor that any services or appliances are in good working order; this should be checked by your surveyor. Furthermore, you should not assume that any items or features referred to in these particulars or shown in the photographs are included in the sale price. Your solicitor should check this as part of the normal conveyancing process.