Priory Crescent, Lewes

Sold Subject to Contract £1,600,000

5 3 4
Lewes Estates is proud to present a rarely available 5 bedroom, 4 reception room listed townhouse in the much sought after Priory Crescent on Southover High Street, Lewes. This property is arranged over five floors and total over 3300sqft. In need of some modernisation it is the ideal opportunity for new owners to put their own stamp on a new forever home. This much loved property has been owned by the same family for over 40 years and is now available for sale with no onward chain subject to grant of probate. With generous accommodation, high ceilings, period features, architectural intrigue and stunning views, this property is a must see.

From the front of the house there are views to the castle over the roof tops of the old town and from the rear there are views towards the Priory ruins and to the South Downs beyond. The house has parking for one car on the private road in front and a mature south facing rear garden.

Priory Crescent is situated in a superb town centre position, just minutes from Lewes' mainline railway station with direct services to Brighton (in 20 minutes) and London (just over an hour). Set on one of the most historic and attractive streets in Lewes and a short walk to the bustling centre of Lewes.

Viewing of this magnificent property is highly recommended. Please contact our office today to arrange your appointment.

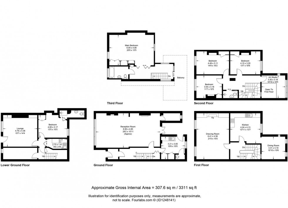
Lower Ground Floor - Lounge (4.76 x 4.38)

Sash window to front elevation, part glazed door to front (with external steps to street level), radiator, concealed fireplace, alcove storage cupboards.

Lower Ground Floor - Bedroom w/En-Suite (4.08 x 3.17)

Window to rear, radiator, built in alcove cupboard, door to shower room which includes a shower cubicle, pedestal basin, white low level WC, fixed storage shelves.

Lower Ground Floor - Kitchen (2.75 x 1.41)

Various wall and base units, two ring electric hob, space for undercounter fridge/freezer, laminate flooring and open shelves

Entrance Vestibule & Hallway

Inner porch with further glazed door to attractive hallway with believed to be original staircase rising to the upper floors. Doorways to the front and back of the reception room, the utility room, and an additional staircase to the lower ground floor.

Ground Floor - Reception Room (8.90 x 4.85)

A large double aspect reception room with central arch, adjoining storage room, and double doors to access the garden.

Utility Room (3.21 x 3.05)

Spacious utility room with sink, wall and base unites for storage, space and plumbing for washing machine and tumble dryer, enclosed WC and single part-glazed door to garden.

First Floor - Drawing Room (6.41 x 4.56)

Floor to ceiling windows, ceiling rose, open fire and marble surround.

Kitchen (4.24 x 4.13)

Multiple wall and base units, 1.5 bowl sink, single over and grill, electric hob, space for fridge/freezer and dishwasher.

Dining Room (3.31 x 3.19)

Double height in part with large windows overlooking the garden and beyond.

Second Floor - Bedroom (4.49 x 3.11)

Window to the rear, alcove cupboards and cast iron fireplace.

Second Floor - Bedroom (4.15 x 3.20)

Window to the front, alcove cupboards and cast iron fireplace.

Second Floor - Bedroom (3.54 x 3.18)

Window to front, small alcove cupboard.

Wet Room

Rainfall shower and handheld attachment, secure safety seat, wash hand basin, low level WC, wall cupboard, tiled walls and laminate floor with drainage.

Artist Studio (3.30 x 3.18)

Glazed door to open balcony studio area, with picture window to rear.

Third Floor - Master Bedroom (6.09 x 4.08)

Large Velux to the rear and small dormer to the front, built in wardrobes and eaves storage

Bathroom

Built in bath, low level WC, pedestal sink, heated towel rail and window to the front.

Outside

Sunny south facing rear garden with paved patio area next to the house, pond, mature trees and shrubs and rear gate providing access.

Floorplan for Priory Crescent, Lewes
EPC Graph for Priory Crescent, Lewes
Similar Property

Request a free valuation

Find out how much your property is worth