Hereward Way, Lewes

Sold £490,000

4 1 2
A great four bedroom family home located in the popular South Malling area of Lewes just a few minutes walk to the town centre, amenities and local primary school.

This property offers huge potential to create a modern family home over two floors offering over 1200st ft of space and the ability to create a large loft conversion if required.

It benefits from both front and rear gardens and has a useful garden office at the rear.

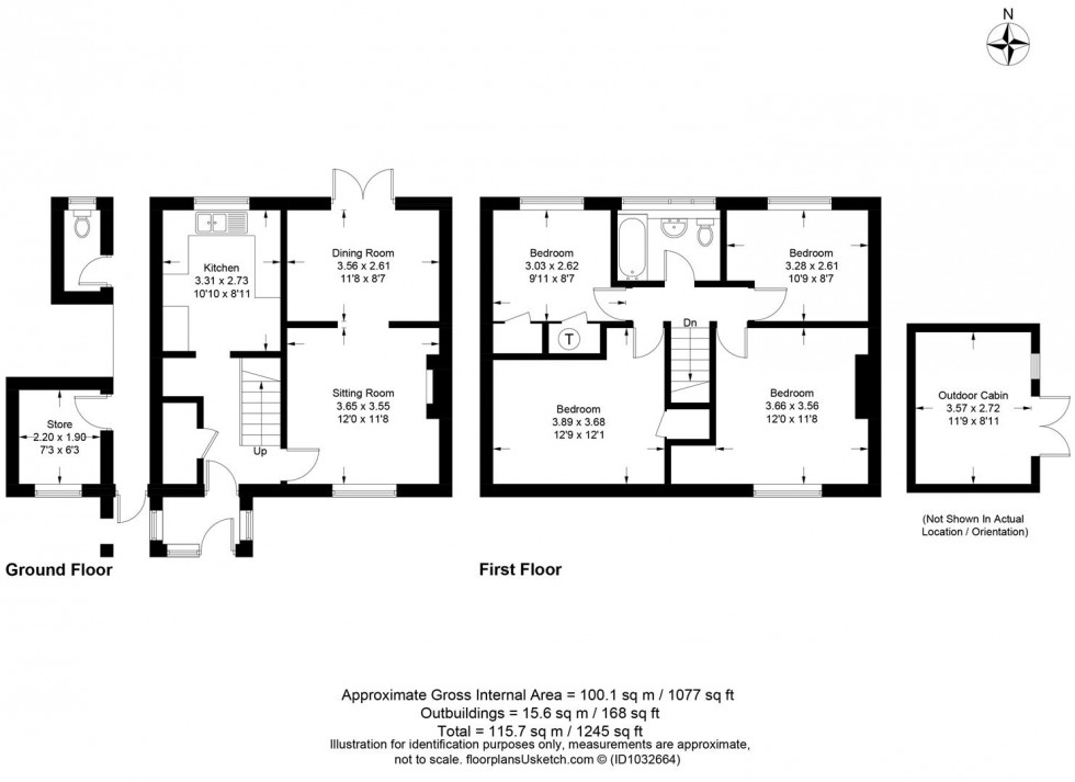
Internally you will find a porch leading into a spacious hallway, a sitting room and dining room with arch in-between and a kitchen. There is also side access to a further storage area and wc.

Upstairs there are four well proportioned bedrooms (all could be doubles) and a family bathroom.

The property would benefit from some modernisation and offers a blank canvas to any buyers wanting to choose how the home evolves from here.

Internal viewings are highly recommended to appreciate the space and scope of this family home.

If you would prefer to do less modernisation / decorating then we also have the next-door property on the market for £525,000

Porch

Front door

Hallway

Sitting Room (3.66m x 3.56m)

Dining Room (3.56m x 2.62m)

Kitchen (3.30m x 2.72m)

WC & Storeroom (2.29m x 1.91m)

First Floor Landing

Bedroom 1 (3.89m x 3.68m)

Bedroom 2 (3.66m x 3.56m)

Bedroom3 (3.28m x 2.62m)

Bedroom 4 (3.02m x 2.62m)

Family Bathroom

Gardens

Cabin / office / workshop (3.58m x 2.72m)

Floorplan for Hereward Way, Lewes
EPC Graph for Hereward Way, Lewes

Request a free valuation

Find out how much your property is worth