Morris Road, LEWES

Sold £625,000

3 1 1
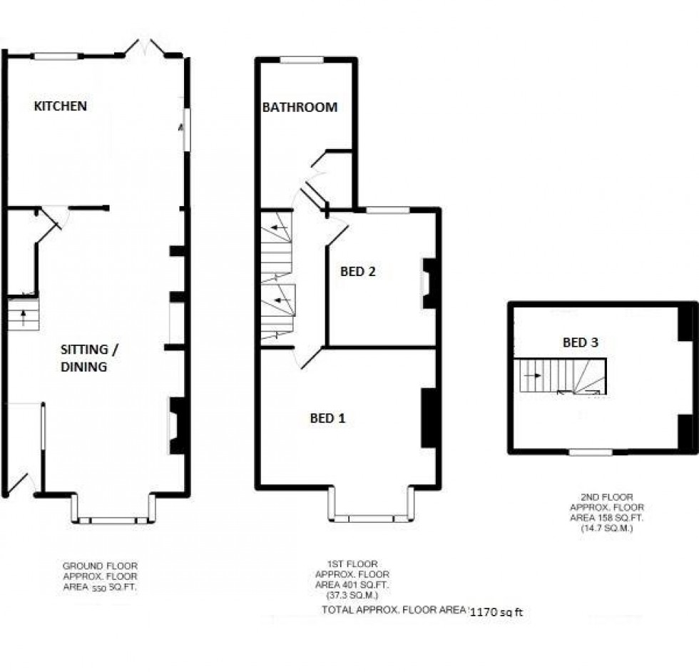
A beautifully presented Victorian terraced home located in popular Morris Road. The property has been thoughtfully extended and modernised by the current owner . The ground floor offers an open plan sitting / dining room with fireplace and lots of clever in-built storage. The kitchen has been extended to the full width of the house and open up into the rear garden.

On the first floor you will find two double bedrooms and a well fitted bathroom with bath and separate shower cubicle. Stairs ascend to the 2nd floor bedroom 3. Great views with a large Velux window.

The rear garden is designed to be quite low maintenance with paved areas and raised flower beds.

Front Door

Lobby

Open Plan Sitting / Dining

Kitchen / Breakfast Room

1st Floor landing

Bedroom 1

Bedroom 2

Bathroom

2nd Floor Bedroom 3

Gardens

Floorplan for Morris Road, LEWES
EPC Graph for Morris Road, LEWES
Similar Properties

Request a free valuation

Find out how much your property is worth