Bishops Drive, Lewes

Sold £350,000

2 1 1
This architecturally designed home rests in the private Barons Down area of Lewes. Benefitting from 2 double bedrooms, a southerly facing rear garden and garage en-bloc.
The award-winning design cleverly focuses on natural light and open space in the property's layout, with all principal rooms showcasing impressive double glazed windows spanning the entire width of the wall.
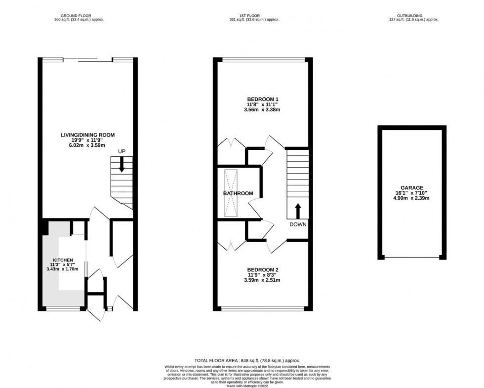
The front door opens into an entrance hall with numerous storage cupboards and leads you to the kitchen and living room. The modern kitchen, which has views to the front of the property, has a clean black and off white finish and boasts generous storage space comprising cupboards, drawers and functional surface space.
The living/dining room benefits from patio doors and large double glazed windows that replace the entire south-facing wall providing direct access to and views across the garden.
Stairs then lead up to the first-floor landing, featuring two storage cupboards.
Bedroom 1 is located at the rear of the property and benefits from a beautiful far-reaching, panoramic view of the townscape and the South Downs.
Bedroom 2 has a bright and airy feel as it has the pleasure of the double glazed windows spanning the entire wall width.
The Bathroom is generously fitted with a bath with overhanging shower, WC and a washbasin. With a modern sky light above.
The Garden sits at the rear of the property and is of a southerly aspect. The garden is mostly laid to lawn and is enclosed by a fence, and benefits from a shed located in the back corner.
A Garage is also included in the sale, located en-bloc to the front of the property.
Barons Down is a private estate with a Residents Association which costs each homeowner approximately £360 Per Annum.
EPC Rating D.

This architecturally designed home rests in the private Barons Down area of Lewes. Benefitting from 2 double bedrooms, a southerly facing rear garden and garage en-bloc.
The award-winning design cleverly focuses on natural light and open space in the property's layout, with all principal rooms showcasing impressive double glazed windows spanning the entire width of the wall.
The front door opens into an entrance hall with numerous storage cupboards and leads you to the kitchen and living room. The modern kitchen, which has views to the front of the property, has a clean black and off white finish and boasts generous storage space comprising cupboards, draws and functional surface space.
The living/dining room benefits from patio doors and large double glazed windows that replace the entire south-facing wall providing direct access to and views across the garden.
Stairs then lead up to the first-floor landing, featuring two storage cupboards.
Bedroom 1 is located at the rear of the property and benefits from a beautiful far-reaching, panoramic view of the townscape and the South Downs.
Bedroom 2 has a bright and airy feel as it has the pleasure of the double glazed windows spanning the entire wall width.
The Bathroom is generously fitted with a bath with overhanging shower, WC and a washbasin. With a modern sky light above.
The Garden sits at the rear of the property and is of a southerly aspect. The garden is mostly laid to lawn and is enclosed by a fence, and benefits from a shed located in the back corner.
A Garage is also included in the sale, located en-bloc to the front of the property.
Barons Down is a private estate with a Residents Association which costs each homeowner approximately £360 Per Annum.
EPC Rating D.

Floorplan for Bishops Drive, Lewes
EPC Graph for Bishops Drive, Lewes
Similar Properties

Request a free valuation

Find out how much your property is worth