Residential Development Site, Pelham Terrace, Lewes

Sold £675,000

A rare and exciting opportunity offered for sale for development. The Grade II Listed former Victorian school, located in the popular and central Pells area of Lewes has planning approval for the construction of 3 Townhouses, within the grounds of the former school. REF: SDNP/20/00676/LIS.
The current Planning Permission sees the existing school buildings mostly untouched with modest extensions and temporary structures being demolished. The existing school building would then remain as D1 Community Use. Much of the grounds however would be developed for the creation of 3 New Dwellings each with Gardens and Parking. Planning has been approved for two, 3 Bedroom Townhouses and one 2/3 Bedroom Townhouse.
The New Dwellings are of 133.4 sq m for the two, 3 Bedroom properties and 109.7 sq m for the 2/3 Bedroom property.

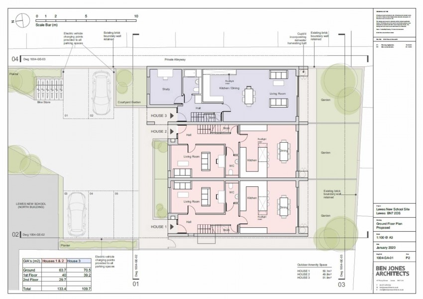
A rare and exciting opportunity offered for sale for development. The Grade II Listed former Victorian school, located in the popular and central Pells area of Lewes has planning approval for the construction of 3 Townhouses, within the grounds of the former school. REF: SDNP/20/00676/LIS.
The current Planning Permission sees the existing school buildings mostly untouched with modest extensions and temporary structures being demolished. The existing school building would then remain as D1 Community Use. Much of the grounds however would be developed for the creation of 3 New Dwellings each with Gardens and Parking. Planning has been approved for two, 3 Bedroom Townhouses and one 2/3 Bedroom Townhouse.
The New Dwellings are of 133.4 sq m for the two, 3 Bedroom properties and 109.7 sq m for the 2/3 Bedroom property.
The 3 Bedroom properties feature Open Plan Kitchen/Diners to the rear of the ground floor with access to the rear gardens, and separate Living Rooms to the front of the properties. Completing the ground floors are WC's. To the first floor are Bedrooms 2 (with balcony) Bedroom 3 and a family Bathroom. To the second floor is the Principle Bedroom Suite incorporating The Bedroom, Dressing Room and En-Suite.
The 2/3 Bedroom property features complete Open Plan Living, Kitchen, Dining with access to the rear Garden. Completing the ground floor is a Study/Bedroom 3 and a ground floor Bathroom. To the first floor are Two Double Bedrooms and a generous Family Bathroom.
The grounds will incorporate Parking, Bicycle Store and Refuse Store. Access will be from Pelham Terrace.
Further Drawings, Planning Documents and associated Site Surveys are available upon request. We understand that the CIL charge has been noted as £55,668.61
The Development Opportunity is available to purchase as a whole with a guide price of £1,500,000, or separately to include just the existing School Buildings with D1 Community Use with a guide price of £850,000 or to include just the Residential Development Plot with the associated Planning Permission with a guide price of £675,000.

Floorplan for Residential Development Site, Pelham Terrace, Lewes Floorplan for Residential Development Site, Pelham Terrace, Lewes Floorplan for Residential Development Site, Pelham Terrace, Lewes

Request a free valuation

Find out how much your property is worth